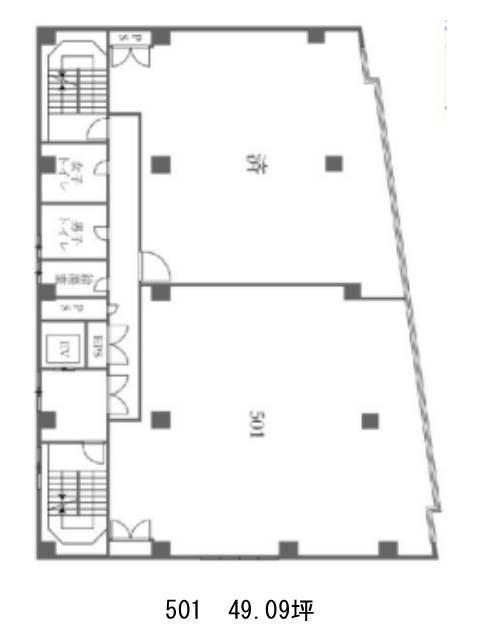
ECS第27ビル 5階 501
物件概要
ECS第27ビルのテナント募集中区画
| 階数 | 面積 | 賃料(共益費含む) | 保証金 | 入居可能日 | 検討リスト | 詳細 |
|---|---|---|---|---|---|---|
| 5 | 49.09坪 | 809,985円/月(16,500円/坪) | 368万円 | 2026年3月上旬 |
…新着物件
アクセス
ECS第27ビルの物件情報
ECS第27ビル(大田区蒲田)は京急蒲田駅(東口)から徒歩5分の賃貸オフィスです。駅近で近隣にコンビニ、郵便局、銀行、飲食店もある利便性の非常に高いエリアです。多摩堤通りから少し入った場所に位置し、薄茶色のタイルの外壁で落ち着いた雰囲気のビルです。1987年竣工、地上8階の鉄骨鉄筋コンクリート造で、新耐震基準を満たしております。個別空調、男女別トイレ、エレベーター1基を完備しており、機械警備導入でセキュリティ面も安心です。基準階は約95坪で、貸室内は窓が大きいため明るく、長方形に近い形状で柱はあるものの端に位置しているためレイアウトの大きな支障にはならないでしょう。ECS第27ビルは京急蒲田駅(東口)の他に蒲田駅(東口)徒歩6分、梅屋敷駅(出口2)徒歩14分で利用も可能です。

