ECS第27ビル 6階新着

前の写真 次の写真

物件概要

物件番号

578-00008-70

物件名

ECS第27ビル

所在地

面積

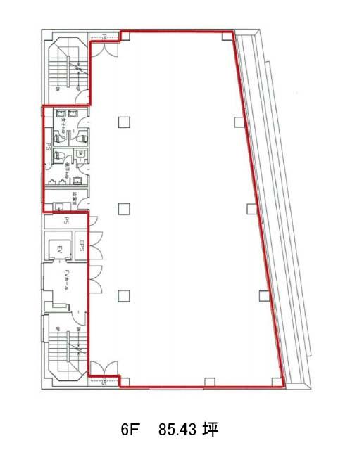
85.43坪

賃料(共益費含)

月額1,597,541
(18,700円/坪)

入居日

2026年10月上旬

保証金

8,713,860円

礼金

なし

更新料

なし

償却費

1ケ月

竣工

1987年2月

構造

SRC

規模

地上8階

トイレ

男女別

空調

個別空調

エレベーター

セキュリティ

駐車場

耐震

新耐震基準

基準階天井高

空室延床面積

85.43坪

最寄駅

情報更新日

2026/04/17

ECS第27ビルのテナント募集中区画

階数 面積 賃料(共益費含む) 保証金 入居可能日 検討リスト 詳細
6 85.43坪 1,597,541円/月(18,700円/坪) 871万円 2026年10月上旬
…新着物件

ECS第27ビルのアクセス

ECS第27ビルの物件情報

ECS第27ビル(大田区蒲田)は京急蒲田駅(東口)から徒歩5分の賃貸オフィスです。
駅近で近隣にコンビニ、郵便局、銀行、飲食店もある利便性の非常に高いエリアです。多摩堤通りから少し入った場所に位置し、薄茶色のタイルの外壁で落ち着いた雰囲気のビルです。1987年竣工、地上8階の鉄骨鉄筋コンクリート造で、新耐震基準を満たしております。個別空調、男女別トイレ、エレベーター1基を完備しており、機械警備導入でセキュリティ面も安心です。基準階は約95坪で、貸室内は窓が大きいため明るく、長方形に近い形状で柱はあるものの端に位置しているためレイアウトの大きな支障にはならないでしょう。
ECS第27ビルは京急蒲田駅(東口)の他に蒲田駅(東口)徒歩6分、梅屋敷駅(出口2)徒歩14分で利用も可能です。

近隣のエリア・駅から探す