3階 302は現在募集がありません
3フロア募集区画あり

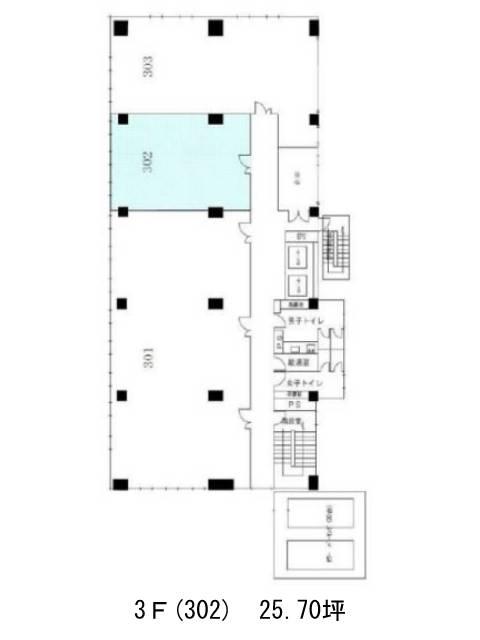
斎藤ビルディング 3階 302

前の写真 次の写真

物件概要

物件番号

633-00121-174

物件名

斎藤ビルディング

所在地

面積

25.70坪

賃料(共益費含)


入居日

募集終了

保証金

礼金

更新料

償却費

竣工

1983年9月

構造

SRC

規模

地上9階/地下1階

トイレ

男女別

空調

セントラル+個別空調

エレベーター

セキュリティ

駐車場

耐震

新耐震基準

基準階天井高

2600mm

空室延床面積

170.41坪

最寄駅

情報更新日

2026/01/23

斎藤ビルディングのテナント募集中区画

階数 面積 賃料(共益費含む) 保証金 入居可能日 検討リスト 詳細
3 74.95坪 1,566,455円/月(20,900円/坪) 1,124万円
4 49.82坪 1,041,238円/月(20,900円/坪) 747万円
8 45.64坪 953,876円/月(20,900円/坪) 684万円
…新着物件

アクセス

斎藤ビルディングの物件情報

斎藤ビルディング(中央区京橋)は宝町駅(A1番出口)から徒歩2分の賃貸オフィスです。
複数路線の利用が可能な、アクセス良好な立地といえるでしょう。外観は全体的に深みのある赤茶色のレンガを基調としており、視認性も高く印象的な建物です。基準階は約150坪と広く、OAフロア床仕様のためレイアウトがしやすいでしょう。ビル内のトイレは男女別となっており、また駐車場を併設しているので車を利用したアクセスも可能です。周辺には、コンビニが複数あるので、ちょっとした買い物には困らないでしょう。
斎藤ビルディングは宝町駅(A1番出口)の他に京橋駅(4番出口)徒歩4分、八丁堀駅(A3番出口)徒歩6分で利用も可能です。

近隣のエリア・駅から探す