斎藤ビルディング 8階 805
物件概要
物件番号
633-00121-176物件名
斎藤ビルディング所在地
- 東京都中央区京橋3-14-6
- アクセスマップ
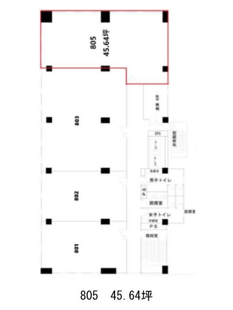
面積
45.64坪賃料(共益費含)
月額953,876円(20,900円/坪)
入居日
即保証金
6,846,000円礼金
なし更新料
なし償却費
なし竣工
1983年9月構造
SRC規模
地上9階/地下1階トイレ
男女別空調
セントラル+個別空調エレベーター
有セキュリティ
有駐車場
有耐震
新耐震基準基準階天井高
2600mm空室延床面積
170.41坪情報更新日
2026/01/23斎藤ビルディングのテナント募集中区画
| 階数 | 面積 | 賃料(共益費含む) | 保証金 | 入居可能日 | 検討リスト | 詳細 |
|---|---|---|---|---|---|---|
| 3 | 74.95坪 | 1,566,455円/月(20,900円/坪) | 1,124万円 | 即 | ||
| 4 | 49.82坪 | 1,041,238円/月(20,900円/坪) | 747万円 | 即 | ||
| 8 | 45.64坪 | 953,876円/月(20,900円/坪) | 684万円 | 即 |
…新着物件
アクセス
斎藤ビルディングの物件情報
斎藤ビルディング(中央区京橋)は宝町駅(A1番出口)から徒歩2分の賃貸オフィスです。複数路線の利用が可能な、アクセス良好な立地といえるでしょう。外観は全体的に深みのある赤茶色のレンガを基調としており、視認性も高く印象的な建物です。基準階は約150坪と広く、OAフロア床仕様のためレイアウトがしやすいでしょう。ビル内のトイレは男女別となっており、また駐車場を併設しているので車を利用したアクセスも可能です。周辺には、コンビニが複数あるので、ちょっとした買い物には困らないでしょう。斎藤ビルディングは宝町駅(A1番出口)の他に京橋駅(4番出口)徒歩4分、八丁堀駅(A3番出口)徒歩6分で利用も可能です。

