東宣ビル 5階
物件概要
物件番号
633-00136-21物件名
東宣ビル所在地
- 東京都中央区京橋3-7-10
- アクセスマップ
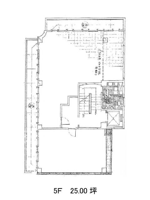
面積
25.00坪賃料(共益費含)
月額431,750円(17,270円/坪)
入居日
2026年6月上旬保証金
1,800,000円礼金
なし更新料
新1ケ月償却費
なし竣工
1962年5月構造
RC規模
地上6階/地下1階トイレ
男女共用空調
個別空調エレベーター
有セキュリティ
駐車場
無耐震
旧耐震基準基準階天井高
空室延床面積
25.00坪情報更新日
2026/03/09東宣ビルのテナント募集中区画
| 階数 | 面積 | 賃料(共益費含む) | 保証金 | 入居可能日 | 検討リスト | 詳細 |
|---|---|---|---|---|---|---|
| 5 | 25.00坪 | 431,750円/月(17,270円/坪) | 180万円 | 2026年6月上旬 |
…新着物件
東宣ビルのアクセス
東宣ビルの物件情報
東宣ビル(中央区京橋)は宝町駅(A4番出口)から徒歩1分の賃貸オフィスです。東宣ビルは宝町駅(A4番出口)の他に京橋駅(1番出口)徒歩2分、銀座一丁目駅(10番出口)徒歩5分で利用も可能です。

