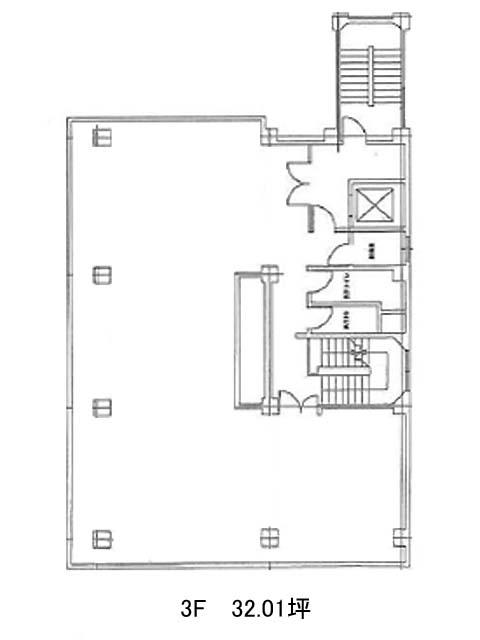
依田忠ビルディングのテナント募集中区画
| 階数 | 面積 | 賃料(共益費含む) | 保証金 | 入居可能日 | 検討リスト | 詳細 |
|---|---|---|---|---|---|---|
| 6 | 53.01坪 | 991,287円/月(18,700円/坪) | 593万円 | 2025年12月上旬 |
…新着物件
アクセス
依田忠ビルディングの物件情報
依田忠ビルディング(中央区京橋)は宝町駅(A7番出口)から徒歩3分の賃貸オフィスです。角地に建つ石貼りの優しい印象を持つビルです。オフィス街という事もあり、徒歩圏内にコンビニが多数ある他、蕎麦屋・中華・居酒屋と飲食店も充実しており昼夜共に楽しめるエリアとなります。大通り(昭和通り)から1本入った場所にあり、歩道も整備され、すれ違うには十分の幅が確保されています。設備として個別空調・男女別トイレ・タイルカーペット・機械警備を揃えています。ビル内に駐車場はないものの、周辺はコインパーキングやパーキングチケットが多数ありますのでご利用ください。依田忠ビルディングは宝町駅(A7番出口)の他に京橋駅(7番出口)徒歩4分、日本橋駅(B3番出口)徒歩7分で利用も可能です。

