依田忠ビルディング 6階
物件概要
物件番号
633-00043-60物件名
依田忠ビルディング所在地
- 東京都中央区京橋1-14-9
- アクセスマップ
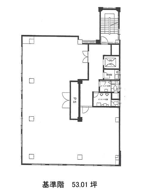
面積
53.01坪賃料(共益費含)
月額991,287円(18,700円/坪)
入居日
2025年12月上旬保証金
5,937,120円礼金
なし更新料
新1ケ月償却費
1ケ月竣工
1965年3月構造
SRC規模
地上9階/地下1階トイレ
男女別空調
個別空調エレベーター
有セキュリティ
有駐車場
無耐震
旧耐震基準基準階天井高
空室延床面積
53.01坪情報更新日
2025/12/01依田忠ビルディングのテナント募集中区画
| 階数 | 面積 | 賃料(共益費含む) | 保証金 | 入居可能日 | 検討リスト | 詳細 |
|---|---|---|---|---|---|---|
| 6 | 53.01坪 | 991,287円/月(18,700円/坪) | 593万円 | 2025年12月上旬 |
…新着物件
アクセス
依田忠ビルディングの物件情報
依田忠ビルディング(中央区京橋)は宝町駅(A7番出口)から徒歩3分の賃貸オフィスです。角地に建つ石貼りの優しい印象を持つビルです。オフィス街という事もあり、徒歩圏内にコンビニが多数ある他、蕎麦屋・中華・居酒屋と飲食店も充実しており昼夜共に楽しめるエリアとなります。大通り(昭和通り)から1本入った場所にあり、歩道も整備され、すれ違うには十分の幅が確保されています。設備として個別空調・男女別トイレ・タイルカーペット・機械警備を揃えています。ビル内に駐車場はないものの、周辺はコインパーキングやパーキングチケットが多数ありますのでご利用ください。依田忠ビルディングは宝町駅(A7番出口)の他に京橋駅(7番出口)徒歩4分、日本橋駅(B3番出口)徒歩7分で利用も可能です。

