7階は現在募集がありません
1フロア募集区画あり

依田忠ビルディング 7階

前の写真 次の写真

物件概要

物件番号

633-00043-70

物件名

依田忠ビルディング

所在地

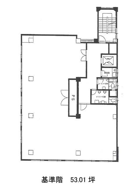
面積

53.01坪

賃料(共益費含)


入居日

募集終了

保証金

礼金

更新料

償却費

竣工

1965年3月

構造

SRC

規模

地上9階/地下1階

トイレ

男女別

空調

個別空調

エレベーター

セキュリティ

駐車場

耐震

旧耐震基準

基準階天井高

空室延床面積

53.01坪

最寄駅

情報更新日

2025/12/01

依田忠ビルディングのテナント募集中区画

階数 面積 賃料(共益費含む) 保証金 入居可能日 検討リスト 詳細
6 53.01坪 991,287円/月(18,700円/坪) 593万円 2025年12月上旬
…新着物件

アクセス

依田忠ビルディングの物件情報

依田忠ビルディング(中央区京橋)は宝町駅(A7番出口)から徒歩3分の賃貸オフィスです。
角地に建つ石貼りの優しい印象を持つビルです。オフィス街という事もあり、徒歩圏内にコンビニが多数ある他、蕎麦屋・中華・居酒屋と飲食店も充実しており昼夜共に楽しめるエリアとなります。大通り(昭和通り)から1本入った場所にあり、歩道も整備され、すれ違うには十分の幅が確保されています。設備として個別空調・男女別トイレ・タイルカーペット・機械警備を揃えています。ビル内に駐車場はないものの、周辺はコインパーキングやパーキングチケットが多数ありますのでご利用ください。
依田忠ビルディングは宝町駅(A7番出口)の他に京橋駅(7番出口)徒歩4分、日本橋駅(B3番出口)徒歩7分で利用も可能です。

近隣のエリア・駅から探す