8階は現在募集がありません

GINZA SIX 8階

前の写真 次の写真

物件概要

物件番号

634-01226-1

物件名

GINZA SIX

所在地

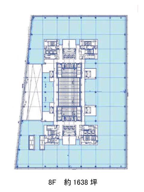
面積

1638.60坪

賃料(共益費含)


入居日

募集終了

保証金

礼金

更新料

償却費

竣工

2017年1月

構造

S造

規模

地上13階/地下6階

トイレ

男女別

空調

セントラル

エレベーター

セキュリティ

駐車場

耐震

新耐震基準

基準階天井高

2900mm

空室延床面積

最寄駅

情報更新日

2024/07/12

GINZA SIXのテナント募集中区画

現在、空室がございません。

アクセス

GINZA SIXの物件情報

GINZA SIX(中央区銀座)は銀座駅(A5番出口)から徒歩3分の賃貸オフィスです。
2017年竣工。地上13階建てということもあり、上層階からの眺望はとても良好で、屋上庭園や伝統文化の象徴の「観世能楽堂」も併設しているため、エンターテインメント性も感じられる建物となっております。基準階フロアは約1800坪を超える広さで、とても開放感があり、エレベーターは13基設置さております。その他個別空調、OAフロア完備、男女別トイレ設置、駐車場もあるため、社用車を使う場合も便利です。周辺には、コンビニや飲食店、銀行などが複数あるため、とても利便性が高いです。
GINZA SIXは銀座駅(A5番出口)の他に東銀座駅(A1番出口)徒歩4分、銀座一丁目駅(8番出口)徒歩7分で利用も可能です。

近隣のエリア・駅から探す