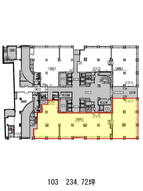
1階 103は現在募集がありません
銀座6丁目ーSQUARE 1階 103
物件概要
銀座6丁目ーSQUAREのテナント募集中区画
現在、空室がございません。
アクセス
銀座6丁目ーSQUAREの物件情報
銀座6丁目ーSQUARE(中央区銀座)は東銀座駅(4番出口)から徒歩4分の賃貸オフィスです。地上16階建ての物件のため、上層階からの眺望はとても良好です。外観は全体的にグレー系を基調としており、全面ガラス張りになっているため、とても綺麗な印象があります。また周辺には、コンビニや飲食店などが複数あるためとても利便性が高いです。ビル内のトイレは男女別となっており、駐車場もあるため、社用車を使う場合も便利です。そしてエレベーターが11基もあるため、ビル内の移動には困らないでしょう。銀座6丁目ーSQUAREは東銀座駅(4番出口)の他に築地市場駅(A3番出口)徒歩6分、銀座駅(A5番出口)徒歩7分で利用も可能です。

