3階は現在募集がありません
PMO銀座Ⅱ 3階
物件概要
PMO銀座Ⅱのテナント募集中区画
現在、空室がございません。
アクセス
PMO銀座Ⅱの物件情報
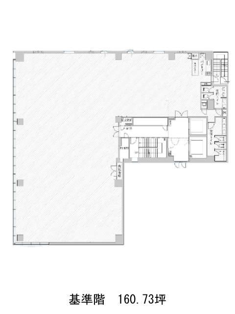
PMO銀座Ⅱ(中央区銀座)は築地市場駅(A3番出口)から徒歩4分の賃貸オフィスです。2023年10月竣工、地上9階建てCFT構造の築浅ビルです。ミラーガラスに覆われたスタイリッシュな外観をしています。基準階面積は160.73坪。ワンフロアワンテナントでプライバシー性の高い執務ができるでしょう。設備仕様として、EV2基・駐車場19台(荷捌き用1台含む)・個別空調(各フロア9ゾーン)・OAフロア(100mm)・LED照明・貸室外の男女別トイレがそろいます。天井高2800mmの室内は明るく開放感があるでしょう。PMO銀座Ⅱは築地市場駅(A3番出口)の他に汐留駅(3番出口)徒歩6分、東銀座駅(4番出口)徒歩6分で利用も可能です。

