6階は現在募集がありません
1フロア募集区画あり

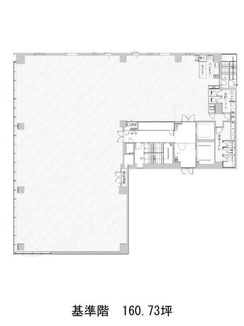
PMO銀座Ⅱ 6階

前の写真 次の写真

物件概要

物件番号

634-01345-5

物件名

PMO銀座Ⅱ

所在地

面積

160.73坪

賃料(共益費含)


入居日

募集終了

保証金

礼金

更新料

償却費

竣工

2023年10月

構造

CFT造

規模

地上9階

トイレ

男女別

空調

個別空調

エレベーター

セキュリティ

駐車場

耐震

新耐震基準

基準階天井高

空室延床面積

75.70坪

最寄駅

情報更新日

2026/04/10

PMO銀座Ⅱのテナント募集中区画

階数 面積 賃料(共益費含む) 保証金 入居可能日 検討リスト 詳細
4 75.70坪 応相談(応相談) 3,179万円 2026年8月中旬
…新着物件

PMO銀座Ⅱのアクセス

PMO銀座Ⅱの物件情報

PMO銀座Ⅱ(中央区銀座)は築地市場駅(A3番出口)から徒歩4分の賃貸オフィスです。
2023年10月竣工、地上9階建てCFT構造の築浅ビルです。ミラーガラスに覆われたスタイリッシュな外観をしています。基準階面積は160.73坪。ワンフロアワンテナントでプライバシー性の高い執務ができるでしょう。設備仕様として、EV2基・駐車場19台(荷捌き用1台含む)・個別空調(各フロア9ゾーン)・OAフロア(100mm)・LED照明・貸室外の男女別トイレがそろいます。天井高2800mmの室内は明るく開放感があるでしょう。
PMO銀座Ⅱは築地市場駅(A3番出口)の他に汐留駅(3番出口)徒歩6分、東銀座駅(4番出口)徒歩6分で利用も可能です。

近隣のエリア・駅から探す