PMO銀座Ⅱのテナント募集中区画
| 階数 | 面積 | 賃料(共益費含む) | 保証金 | 入居可能日 | 検討リスト | 詳細 |
|---|---|---|---|---|---|---|
| 8 | 160.80坪 | 5,837,040円/月(36,300円/坪) | 6,367万円 | 即 |
…新着物件
アクセス
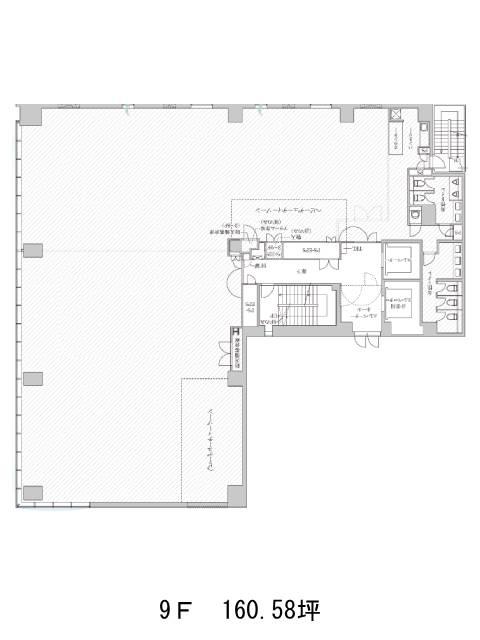
PMO銀座Ⅱの物件情報
PMO銀座Ⅱ(中央区銀座)は築地市場駅(A3番出口)から徒歩4分の賃貸オフィスです。2023年10月竣工、地上9階建てCFT構造の築浅ビルです。ミラーガラスに覆われたスタイリッシュな外観をしています。基準階面積は160.73坪。ワンフロアワンテナントでプライバシー性の高い執務ができるでしょう。設備仕様として、EV2基・駐車場19台(荷捌き用1台含む)・個別空調(各フロア9ゾーン)・OAフロア(100mm)・LED照明・貸室外の男女別トイレがそろいます。天井高2800mmの室内は明るく開放感があるでしょう。PMO銀座Ⅱは築地市場駅(A3番出口)の他に汐留駅(3番出口)徒歩6分、東銀座駅(4番出口)徒歩6分で利用も可能です。

