清月堂本店ビルのテナント募集中区画
| 階数 | 面積 | 賃料(共益費含む) | 保証金 | 入居可能日 | 検討リスト | 詳細 |
|---|---|---|---|---|---|---|
| 9 | 42.58坪 | 702,570円/月(16,500円/坪) | 510万円 | 2026年8月上旬 |
…新着物件
清月堂本店ビルのアクセス
清月堂本店ビルの物件情報
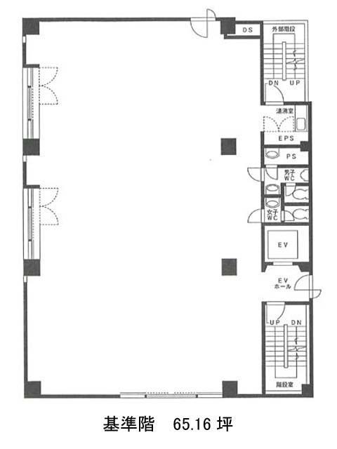
清月堂本店ビル(中央区銀座)は築地市場駅(A3番出口)から徒歩3分の賃貸オフィスです。中央市場通り沿いの角地にある、9階建てのビルです。基準階は65.16坪の長方形の間取りになっています。床がフリーアクセスになっているので、レイアウトしやすいと思います。給湯室と男女別トイレは室内に設置されています。ビル1階と2階には、名前の由来になった清月堂本店があります。明治40年創業の老舗の和菓子店で、1階は販売店舗、2階は喫茶室となっています。清月堂本店ビルは築地市場駅(A3番出口)の他に東銀座駅(出口)徒歩5分、汐留駅(3番出口)徒歩7分で利用も可能です。

