4階は現在募集がありません
1フロア募集区画あり

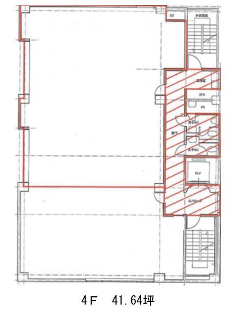
清月堂本店ビル 4階

前の写真 次の写真

物件概要

物件番号

634-00465-92

物件名

清月堂本店ビル

所在地

面積

41.64坪

賃料(共益費含)


入居日

募集終了

保証金

礼金

更新料

償却費

竣工

1978年5月

構造

SRC

規模

地上9階

トイレ

男女別

空調

個別空調

エレベーター

セキュリティ

駐車場

耐震

旧耐震基準

基準階天井高

2330mm

空室延床面積

42.58坪

最寄駅

情報更新日

2026/02/19

清月堂本店ビルのテナント募集中区画

階数 面積 賃料(共益費含む) 保証金 入居可能日 検討リスト 詳細
9 42.58坪 702,570円/月(16,500円/坪) 510万円 2026年8月上旬
…新着物件

清月堂本店ビルのアクセス

清月堂本店ビルの物件情報

清月堂本店ビル(中央区銀座)は築地市場駅(A3番出口)から徒歩3分の賃貸オフィスです。
中央市場通り沿いの角地にある、9階建てのビルです。基準階は65.16坪の長方形の間取りになっています。床がフリーアクセスになっているので、レイアウトしやすいと思います。給湯室と男女別トイレは室内に設置されています。ビル1階と2階には、名前の由来になった清月堂本店があります。明治40年創業の老舗の和菓子店で、1階は販売店舗、2階は喫茶室となっています。
清月堂本店ビルは築地市場駅(A3番出口)の他に東銀座駅(出口)徒歩5分、汐留駅(3番出口)徒歩7分で利用も可能です。

近隣のエリア・駅から探す