3階は現在募集がありません
4フロア募集区画あり

GINZA M TOWER 3階

前の写真 次の写真

物件概要

物件番号

634-00476-42

物件名

GINZA M TOWER

所在地

面積

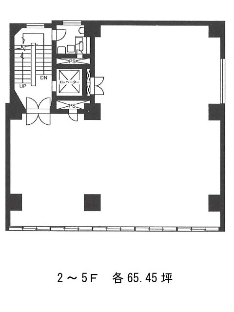
65.45坪

賃料(共益費含)


入居日

募集終了

保証金

礼金

更新料

償却費

竣工

1964年6月

構造

SRC

規模

地上9階/地下2階

トイレ

男女別

空調

エレベーター

セキュリティ

駐車場

耐震

耐震補強済み

基準階天井高

空室延床面積

204.07坪

最寄駅

情報更新日

2026/01/16

GINZA M TOWERのテナント募集中区画

階数 面積 賃料(共益費含む) 保証金 入居可能日 検討リスト 詳細
2 56.90坪 応相談(応相談) 応相談
4 56.90坪 応相談(応相談) 応相談
5 56.90坪 応相談(応相談) 応相談
7 33.37坪 応相談(応相談) 応相談
…新着物件

アクセス

GINZA M TOWERの物件情報

GINZA M TOWER(中央区銀座)は銀座駅(B3番出口)から徒歩2分の賃貸オフィスです。
本物件が位置するのは、銀座の中でも屈指のブランドストリート「みゆき通り」沿い。名だたるラグジュアリーブランドが軒を連ね、街全体に洗練された空気が流れるこの立地は、来訪者にも強い印象を残します。企業イメージの向上にもつながる、まさに銀座らしいビジネス拠点です。
2025年に大規模リニューアルが完了しています。(耐震補強済み)基準階は約65坪の整形区画で、柱の配置を考慮しながら効率的なオフィスレイアウトが実現できます。
GINZA M TOWERは銀座駅(B3番出口)の他に日比谷駅(A0番出口)徒歩6分、東銀座駅(A1番出口)徒歩6分で利用も可能です。

近隣のエリア・駅から探す