4階 4Bは現在募集がありません
1フロア募集区画あり

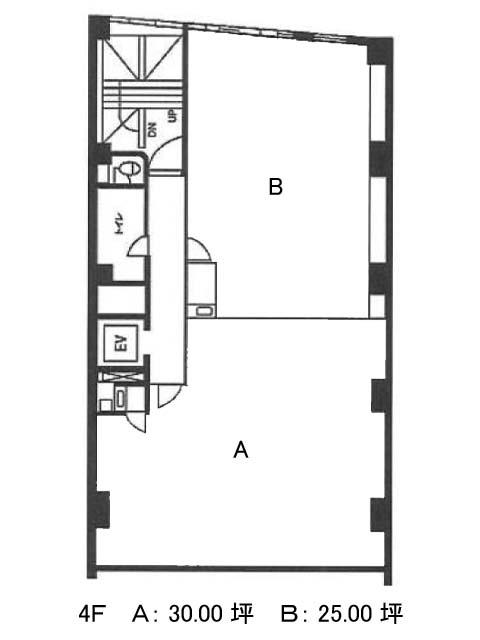
ダイヤモンドビル 4階 4B

前の写真 次の写真

物件概要

物件番号

634-00057-40

物件名

ダイヤモンドビル

所在地

面積

25.00坪

賃料(共益費含)


入居日

募集終了

保証金

礼金

更新料

償却費

竣工

1964年1月

構造

RC

規模

地上8階/地下2階

トイレ

不明

空調

エレベーター

セキュリティ

駐車場

耐震

旧耐震基準

基準階天井高

空室延床面積

60.00坪

最寄駅

情報更新日

2026/03/11

ダイヤモンドビルのテナント募集中区画

階数 面積 賃料(共益費含む) 保証金 入居可能日 検討リスト 詳細
6 60.00坪 1,584,000円/月(26,400円/坪) 1,440万円
…新着物件

ダイヤモンドビルのアクセス

ダイヤモンドビルの物件情報

ダイヤモンドビル(中央区銀座)は銀座駅(A5番出口)から徒歩3分の賃貸オフィスです。
みゆき通り沿いに建つ地上8階地下2階のビルです。通り沿いに窓面が設けられ、採光が期待できるでしょう。室内は、柱が中央に無い為レイアウトがしやすい間取りになっております。機械警備・EV1基・個別空調となります。ビル正面は、中央に階段が設けられ道行く人々の目をひきます。周辺は、化粧品店・飲食店等が建ち、昼夜問わず多くの人々が訪れるエリアとなります。街路樹やデザイン性のある街灯で、来客の目を楽しませてくれるでしょう。
ダイヤモンドビルは銀座駅(A5番出口)の他に東銀座駅(A1番出口)徒歩4分、銀座一丁目駅(8番出口)徒歩7分で利用も可能です。

近隣のエリア・駅から探す