銀座松良ビル 6階
物件概要
物件番号
634-00063-70物件名
銀座松良ビル所在地
- 東京都中央区銀座7-17-8
- アクセスマップ
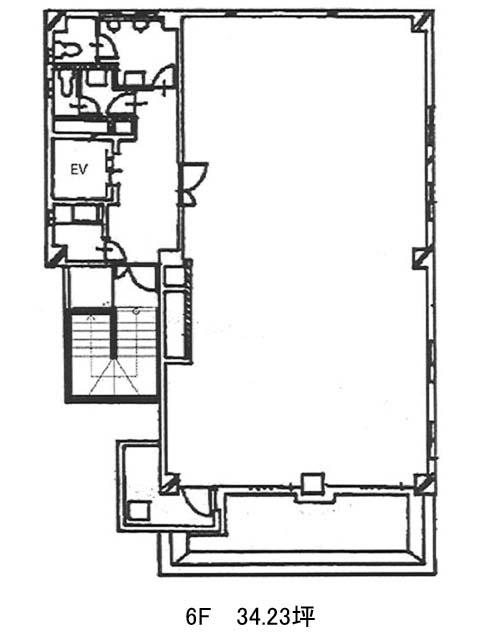
面積
34.23坪賃料(共益費含)
月額602,445円(17,600円/坪)
入居日
相談保証金
2,669,940円礼金
なし更新料
新1ケ月償却費
なし竣工
1984年6月構造
RC規模
地上7階/地下1階トイレ
男女別空調
個別空調エレベーター
有セキュリティ
有駐車場
無耐震
新耐震基準基準階天井高
空室延床面積
34.23坪情報更新日
2026/01/16銀座松良ビルのテナント募集中区画
| 階数 | 面積 | 賃料(共益費含む) | 保証金 | 入居可能日 | 検討リスト | 詳細 |
|---|---|---|---|---|---|---|
| 6 | 34.23坪 | 602,445円/月(17,600円/坪) | 266万円 | 相談 |
…新着物件
アクセス
銀座松良ビルの物件情報
銀座松良ビル(中央区銀座)は築地市場駅(A3番出口)から徒歩2分の賃貸オフィスです。1984年竣工、地上7階地下1階建てRC造のビルです。新耐震基準を満たしています。キューブが組み合わさったような、デザイン性のある外観をしています。基準階面積は48.76坪。間取りは長方形の無柱空間でレイアウトがしやすいでしょう。設備仕様として、EV・機械警備・貸室外の男女別トイレがそろいます。空調は個別が導入されています。2014年に、トイレ・水まわり・外装のリニューアルが実施され、使い勝手のよさがキープされています。銀座松良ビルは築地市場駅(A3番出口)の他に東銀座駅(出口)徒歩5分、汐留駅(3番出口)徒歩8分で利用も可能です。

