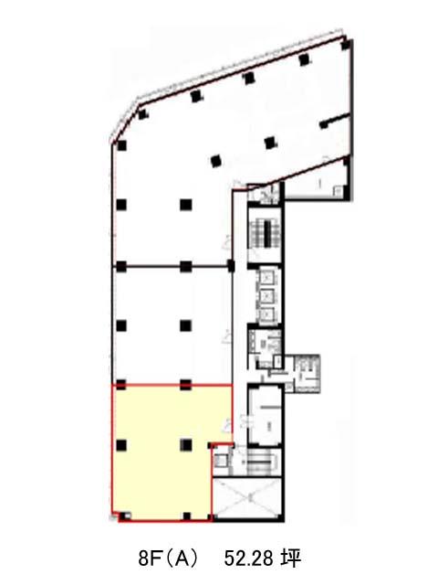
8階 8Aは現在募集がありません
Daiwa銀座ビル 8階 8A
物件概要
Daiwa銀座ビルのテナント募集中区画
現在、空室がございません。
アクセス
Daiwa銀座ビルの物件情報
Daiwa銀座ビル(中央区銀座)は銀座駅(C1番出口)から徒歩4分の賃貸オフィスです。銀座コリドー通りに面して建てられているビルです。1963年竣工ですが、2003年に大規模改修工事をしているので、とても綺麗です。外観は立体感のあるデザインで、ガラス張りなので透明感があります。1階にはコンビニが入っているため、視認性も高いでしょう。募集時期やフロアによっては分割区画があります。室外に男女別のトイレがあります。機械警備も備え、耐震補強も済んでいるので安心・安全です。飲食店の数も豊富なので、ランチタイムは食事に困らないでしょう。Daiwa銀座ビルは銀座駅(C1番出口)の他に日比谷駅(A4番出口)徒歩5分、有楽町駅(銀座口)徒歩6分で利用も可能です。

