4階は現在募集がありません

コリドースクエア銀座7丁目 4階

前の写真 次の写真

物件概要

物件番号

634-00094-184

物件名

コリドースクエア銀座7丁目

所在地

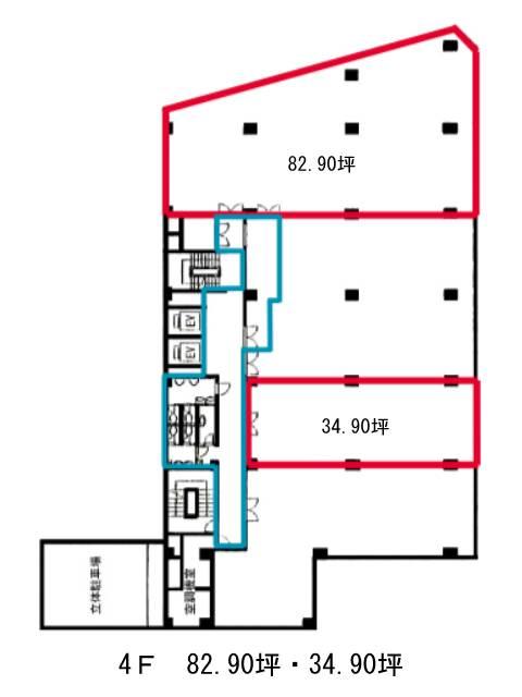
面積

82.90坪

賃料(共益費含)


入居日

募集終了

保証金

礼金

更新料

償却費

竣工

1974年9月

構造

SRC

規模

地上9階/地下1階

トイレ

男女別

空調

個別空調

エレベーター

セキュリティ

駐車場

耐震

旧耐震基準

基準階天井高

2310mm

空室延床面積

最寄駅

情報更新日

2023/07/05

コリドースクエア銀座7丁目のテナント募集中区画

現在、空室がございません。

コリドースクエア銀座7丁目のアクセス

コリドースクエア銀座7丁目の物件情報

コリドースクエア銀座7丁目(中央区銀座)は銀座駅(C3番出口)から徒歩5分の賃貸オフィスです。
コリドー通りと、交詢社通りの角地に建ち、暖かみのある色調がシンボリックな外観です。2019年にエントランス・共有部のリニューアルがされ、ビル全体の印象が明るくなりました。空調は個別・OAフロア・男女別トイレ・EV2基・駐車場と充実した設備。1974年竣工ですが新耐震同等建物として診断されています。200坪を超える広々とした貸室もあり、ビジネスチャンスが広がります。室内は二面採光で明るい室内が期待できるでしょう。
コリドースクエア銀座7丁目は銀座駅(C3番出口)の他に日比谷駅(A4番出口)徒歩6分、有楽町駅(銀座口)徒歩7分で利用も可能です。

近隣のエリア・駅から探す