4階 402は現在募集がありません
月島NRビル 4階 402
物件概要
月島NRビルのテナント募集中区画
現在、空室がございません。
アクセス
月島NRビルの物件情報
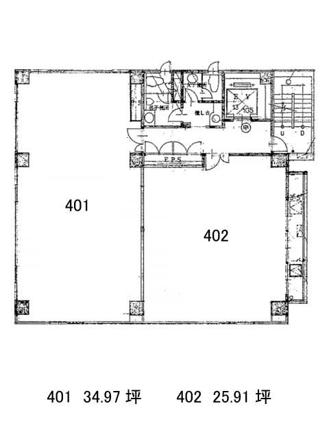
月島NRビル(中央区月島)は月島駅(10番出口)から徒歩6分の賃貸オフィスです。隅田川に面した7階建のビルで、少し入ると「もんじゃストリート」という立地です。隅田川に面しているので、眺望が良いです。間取りについては、分割して貸し出しているフロアもあり、コンパクトな部屋は4.5坪ほどで、広い部屋は35坪ほどあります。男女別トイレと給湯設備が室外に設置されていて、レイアウトしやすい間取りになっています。月島は東京オリンピックに向けて多数の競技場が設けられることになっていて、インフラ整備が活発に進められています。月島NRビルは月島駅(10番出口)の他に勝どき駅(A1番出口)徒歩8分で利用も可能です。

