5階 分割①東は現在募集がありません
Daiwa月島ビル 5階 分割①東
物件概要
Daiwa月島ビルのテナント募集中区画
現在、空室がございません。
Daiwa月島ビルのアクセス
Daiwa月島ビルの物件情報
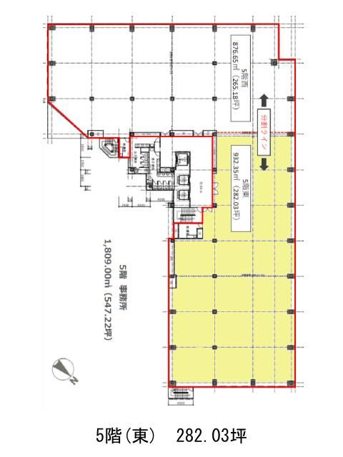
Daiwa月島ビル(中央区月島)は勝どき駅(A2a番出口)から徒歩5分の賃貸オフィスです。明るいグレーの外壁に、窓が規則的に並びすっきりとした外観をしています。エントランスは天然石を使用し高級感のあるデザインをしています。設備としてEV・駐車場・男女別トイレ・個別空調・OAフロアが備えられ、機械警備を導入しています。間取りはビルの形状を活かしたL字型です。2700㎜の天井高で開放感があるでしょう。500坪を超えるフロアで、大規模の事務所をお探しの方にお勧めです。通りを挟み小学校があり、校庭側は開けた眺望となるでしょう。Daiwa月島ビルは勝どき駅(A2a番出口)の他に月島駅(10番出口)徒歩5分で利用も可能です。

