2階は現在募集がありません
4フロア募集区画あり

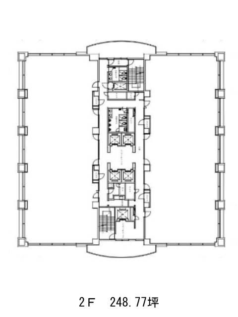
パシフィックマークス月島ビル 2階

前の写真 外観①(メイン) 次の写真

物件概要

物件番号

635-00032-20

物件名

パシフィックマークス月島ビル

所在地

面積

248.78坪

賃料(共益費含)


入居日

募集終了

保証金

礼金

更新料

償却費

竣工

1990年3月

構造

規模

地上13階/地下2階

トイレ

男女別

空調

エレベーター

セキュリティ

駐車場

耐震

新耐震基準

基準階天井高

2600mm

空室延床面積

1089.68坪

最寄駅

情報更新日

2025/10/02

パシフィックマークス月島ビルのテナント募集中区画

階数 面積 賃料(共益費含む) 保証金 入居可能日 検討リスト 詳細
3 272.42坪 応相談(応相談) 応相談
4 272.42坪 応相談(応相談) 応相談
5 272.42坪 応相談(応相談) 応相談
6 272.42坪 応相談(応相談) 応相談
…新着物件

アクセス

パシフィックマークス月島ビルの物件情報

パシフィックマークス月島ビル(中央区月島)は月島駅(7番出口)から徒歩4分の賃貸オフィスです。
1990年竣工、地上13階地下2階建てのビルです。正方形のガラス窓が規則的に並び、すっきりとした外観をしています。貸室は無柱空間で、デスク等の配置がしやすいでしょう。設備仕様として、EV・空調・OAフロア・給湯室・貸室外の男女別トイレが整います。室内への出入口が複数あり、来客用と動線を分けられるでしょう。エントランスホールは落ち着いた雰囲気の内装で、ゆったりと来客をお迎えできるでしょう。
パシフィックマークス月島ビルは月島駅(7番出口)の他に勝どき駅(A1番出口)徒歩11分、新富町駅(7番出口)徒歩14分で利用も可能です。

近隣のエリア・駅から探す