3階は現在募集がありません
3フロア募集区画あり
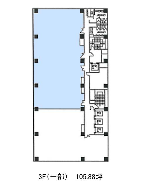
ONE SHINKAWA 3階
物件概要
物件番号
637-00109-182物件名
ONE SHINKAWA所在地
- 東京都中央区新川1-23-5
- アクセスマップ
面積
105.88坪賃料(共益費含)
−入居日
募集終了保証金
−礼金
−更新料
−償却費
−竣工
1990年8月構造
SRC規模
地上14階/地下1階トイレ
男女別空調
セントラル+個別空調エレベーター
有セキュリティ
有駐車場
有耐震
新耐震基準基準階天井高
2340mm空室延床面積
109.57坪情報更新日
2025/12/12ONE SHINKAWAのテナント募集中区画
| 階数 | 面積 | 賃料(共益費含む) | 保証金 | 入居可能日 | 検討リスト | 詳細 |
|---|---|---|---|---|---|---|
| 12 | 38.30坪 | 926,858円/月(24,200円/坪) | 応相談 | 即 | ||
| 14 | 29.86坪 | 722,612円/月(24,200円/坪) | 応相談 | 即 | ||
| 14 | 41.41坪 | 1,002,122円/月(24,200円/坪) | 応相談 | 即 |
…新着物件
アクセス
ONE SHINKAWAの物件情報
ONE SHINKAWA(中央区新川)は茅場町駅(出口)から徒歩8分の賃貸オフィスです。永代通りに面して建てられている14階建てのビルです。角地に立地しているため、採光性は高いでしょう。ライトグレーのタイル張りで窓幅の広いデザインで清潔感&高級感ある外観で視認性も高そうです。募集時期やフロアにより分割区画もあります。共用部には男女別トイレと給湯室があり快適に過ごせます。床はフリーアクセスのためレイアウトはしやすいでしょう。周辺はビジネス街ですが飲食店も多数あるので、ランチタイムは食事がしやすいでしょう。コンビニ、郵便局、銀行なども徒歩圏内にあるので、便利な環境です。ONE SHINKAWAは茅場町駅(出口)の他に八丁堀駅(B4番出口)徒歩8分、水天宮前駅(2番出口)徒歩10分で利用も可能です。

