3階は現在募集がありません
3フロア募集区画あり

大豊アネックス 3階

前の写真 次の写真

物件概要

物件番号

637-00133-40

物件名

大豊アネックス

所在地

面積

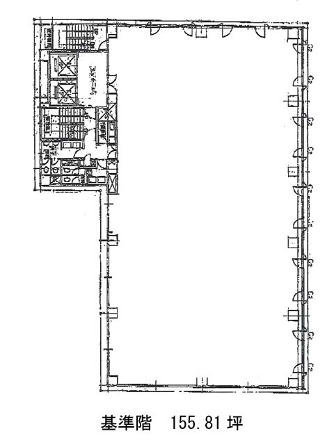
155.81坪

賃料(共益費含)


入居日

募集終了

保証金

礼金

更新料

償却費

竣工

1987年9月

構造

SRC

規模

地上8階/地下1階

トイレ

男女別

空調

セントラル

エレベーター

セキュリティ

駐車場

耐震

新耐震基準

基準階天井高

2550mm

空室延床面積

467.43坪

最寄駅

情報更新日

2026/01/07

大豊アネックスのテナント募集中区画

階数 面積 賃料(共益費含む) 保証金 入居可能日 検討リスト 詳細
6 155.81坪 応相談(応相談) 応相談 2026年3月上旬
7 155.81坪 応相談(応相談) 応相談 2026年3月上旬
8 155.81坪 応相談(応相談) 応相談 2026年5月下旬
…新着物件

アクセス

大豊アネックスの物件情報

大豊アネックス(中央区新川)は茅場町駅(出口)から徒歩7分の賃貸オフィスです。
大豊アネックスは茅場町駅(出口)の他に八丁堀駅(B4番出口)徒歩8分、水天宮前駅(2番出口)徒歩10分で利用も可能です。

近隣のエリア・駅から探す