大豊アネックス 6階新着
物件概要
物件番号
637-00133-70物件名
大豊アネックス所在地
- 東京都中央区新川1-24-1
- アクセスマップ
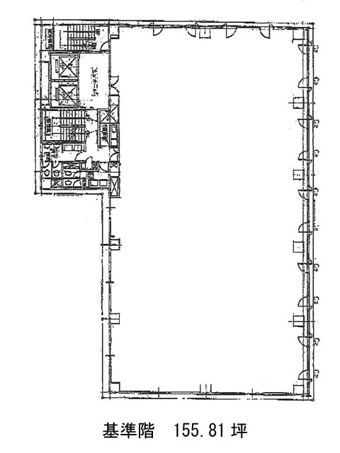
面積
155.81坪賃料(共益費含)
:応相談応相談
入居日
2026年3月上旬保証金
応相談礼金
なし更新料
なし償却費
なし竣工
1987年9月構造
SRC規模
地上8階/地下1階トイレ
男女別空調
セントラルエレベーター
有セキュリティ
駐車場
有耐震
新耐震基準基準階天井高
2550mm空室延床面積
467.43坪情報更新日
2025/12/02大豊アネックスのテナント募集中区画
| 階数 | 面積 | 賃料(共益費含む) | 保証金 | 入居可能日 | 検討リスト | 詳細 |
|---|---|---|---|---|---|---|
| 6 | 155.81坪 | 応相談(応相談) | 応相談 | 2026年3月上旬 | ||
| 7 | 155.81坪 | 応相談(応相談) | 応相談 | 2026年3月上旬 | ||
| 8 | 155.81坪 | 応相談(応相談) | 応相談 | 2026年5月下旬 |
…新着物件
アクセス
大豊アネックスの物件情報
大豊アネックス(中央区新川)は茅場町駅(出口)から徒歩7分の賃貸オフィスです。大豊アネックスは茅場町駅(出口)の他に八丁堀駅(B4番出口)徒歩8分、水天宮前駅(2番出口)徒歩10分で利用も可能です。

