茅場町ファーストビルのテナント募集中区画
| 階数 | 面積 | 賃料(共益費含む) | 保証金 | 入居可能日 | 検討リスト | 詳細 |
|---|---|---|---|---|---|---|
| 2 | 463.95坪 | 応相談(応相談) | 応相談 | 2026年4月 |
…新着物件
アクセス
茅場町ファーストビルの物件情報
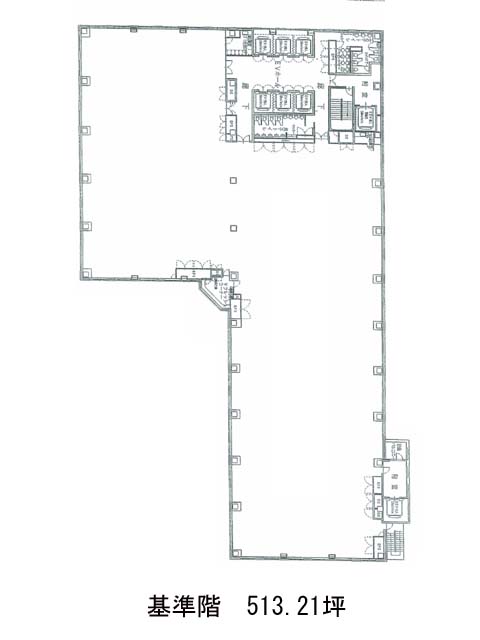
茅場町ファーストビル(中央区新川)は茅場町駅(4B番出口)から徒歩5分の賃貸オフィスです。地上12階建てで、竣工2002年の物件ということもあり、上層階からの眺望はとても良好で、建物自体も比較的綺麗です。ビル内のトイレは男女別となっており、駐車場もあるため、社用車を使う場合も便利です。基準階は約513坪もあり、室内はL字型の形をしていますが、柱は邪魔にならない位置にあるため、比較的レイアウトは組みやすいでしょう。また周辺には、コンビニや飲食店、郵便局などが複数あるためとても利便性が高いです。茅場町ファーストビルは茅場町駅(4B番出口)の他に水天宮前駅(2番出口)徒歩8分、八丁堀駅(B4番出口)徒歩9分で利用も可能です。

