9階は現在募集がありません
1フロア募集区画あり

茅場町ファーストビル 9階

前の写真 次の写真

物件概要

物件番号

637-00235-90

物件名

茅場町ファーストビル

所在地

面積

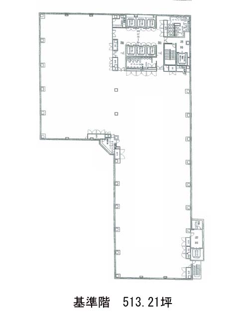
513.21坪

賃料(共益費含)


入居日

募集終了

保証金

礼金

更新料

償却費

竣工

2002年4月

構造

S造

規模

地上12階

トイレ

男女別

空調

個別空調

エレベーター

セキュリティ

駐車場

耐震

新耐震基準

基準階天井高

2900mm

空室延床面積

463.95坪

最寄駅

情報更新日

2026/03/10

茅場町ファーストビルのテナント募集中区画

階数 面積 賃料(共益費含む) 保証金 入居可能日 検討リスト 詳細
2 463.95坪 応相談(応相談) 応相談 2026年4月
…新着物件

茅場町ファーストビルのアクセス

茅場町ファーストビルの物件情報

茅場町ファーストビル(中央区新川)は茅場町駅(4B番出口)から徒歩5分の賃貸オフィスです。
地上12階建てで、竣工2002年の物件ということもあり、上層階からの眺望はとても良好で、建物自体も比較的綺麗です。ビル内のトイレは男女別となっており、駐車場もあるため、社用車を使う場合も便利です。基準階は約513坪もあり、室内はL字型の形をしていますが、柱は邪魔にならない位置にあるため、比較的レイアウトは組みやすいでしょう。また周辺には、コンビニや飲食店、郵便局などが複数あるためとても利便性が高いです。
茅場町ファーストビルは茅場町駅(4B番出口)の他に水天宮前駅(2番出口)徒歩8分、八丁堀駅(B4番出口)徒歩9分で利用も可能です。

近隣のエリア・駅から探す