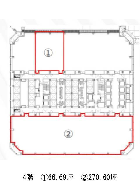
4階は現在募集がありません
6フロア募集区画あり

晴海アイランドトリトンスクエアオフィスタワーX棟 4階

前の写真 次の写真

物件概要

物件番号

639-00004-50

物件名

晴海アイランドトリトンスクエアオフィスタワーX棟

所在地

面積

270.60坪

賃料(共益費含)


入居日

募集終了

保証金

礼金

更新料

償却費

竣工

2001年4月

構造

S造

規模

地上44階/地下4階

トイレ

男女別

空調

セントラル

エレベーター

セキュリティ

駐車場

耐震

新耐震基準

基準階天井高

2700mm

空室延床面積

1230.99坪

最寄駅

情報更新日

2026/04/06

晴海アイランドトリトンスクエアオフィスタワーX棟のテナント募集中区画

階数 面積 賃料(共益費含む) 保証金 入居可能日 検討リスト 詳細
2 116.17坪 応相談(応相談) 応相談 2026年10月上旬
8 52.80坪 応相談(応相談) 応相談
8 52.80坪 応相談(応相談) 応相談
20 562.95坪 応相談(応相談) 応相談
21 219.10坪 応相談(応相談) 応相談
44 227.17坪 応相談(応相談) 応相談
…新着物件

晴海アイランドトリトンスクエアオフィスタワーX棟のアクセス

晴海アイランドトリトンスクエアオフィスタワーX棟の物件情報

晴海アイランドトリトンスクエアオフィスタワーX棟(中央区晴海)は勝どき駅(A2a番出口)から徒歩8分の賃貸オフィスです。
2001年竣工地上44階地下4階建のビルです。すらりとそびえ立つ様子は周囲のランドマーク的存在となるでしょう。EV35基・駐車場・男女別トイレ・ゾーン別の個別空調と充実の設備仕様。機械警備と有人警備が併用され安心のセキュリティです。貸室は100坪台のものから500坪台等様々あり、多様なニーズに対応できるでしょう。周囲はオフィスビルとマンションが混在したエリアで、飲食店・コンビニ・スーパーが充実しています。
晴海アイランドトリトンスクエアオフィスタワーX棟は勝どき駅(A2a番出口)の他に月島駅(10番出口)徒歩12分で利用も可能です。

近隣のエリア・駅から探す