7階 7Bは現在募集がありません
2フロア募集区画あり

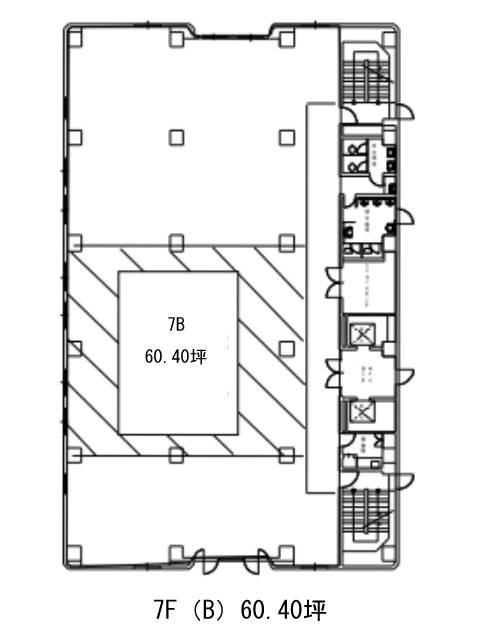
江間忠晴海ビル 7階 7B

前の写真 次の写真

物件概要

物件番号

639-00006-63

物件名

江間忠晴海ビル

所在地

面積

60.40坪

賃料(共益費含)


入居日

募集終了

保証金

礼金

更新料

償却費

竣工

1974年10月

構造

S造

規模

地上9階

トイレ

男女別

空調

個別空調

エレベーター

セキュリティ

駐車場

耐震

耐震補強済み

基準階天井高

2400mm

空室延床面積

123.98坪

最寄駅

情報更新日

2026/02/10

江間忠晴海ビルのテナント募集中区画

階数 面積 賃料(共益費含む) 保証金 入居可能日 検討リスト 詳細
7 30.20坪 応相談(応相談) 応相談
8 93.78坪 応相談(応相談) 応相談
…新着物件

江間忠晴海ビルのアクセス

江間忠晴海ビルの物件情報

江間忠晴海ビル(中央区晴海)は勝どき駅(A2a番出口)から徒歩9分の賃貸オフィスです。
1974年竣工地上9階建ビルです。外観は白い外壁の中央部分に黒のミラーガラスがアクセントとなり目を引くでしょう。2013年に耐震補強工事が済んでおります。共用部は白を基調とし、明るく清潔感のあるデザインです。EV2基・駐車場・非常階段2箇所・執務室外の男女別トイレ・個別空調といった設備仕様です。光ケーブルMDF引込済で、セキュリティとして機械警備が導入されています。室内は長方形で、OAフロアとなります。
江間忠晴海ビルは勝どき駅(A2a番出口)の他に月島駅(10番出口)徒歩15分で利用も可能です。

近隣のエリア・駅から探す