4階は現在募集がありません
4フロア募集区画あり

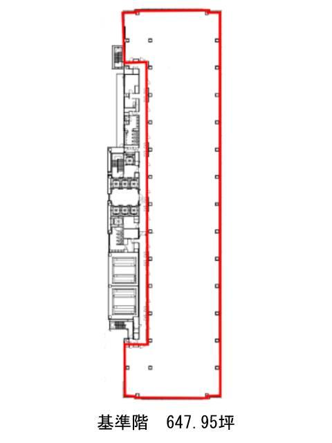
晴海センタービル 4階

前の写真 次の写真

物件概要

物件番号

639-00009-70

物件名

晴海センタービル

所在地

面積

647.95坪

賃料(共益費含)


入居日

募集終了

保証金

礼金

更新料

償却費

竣工

2006年11月

構造

S造

規模

地上10階

トイレ

男女別

空調

個別空調

エレベーター

セキュリティ

駐車場

耐震

新耐震基準

基準階天井高

2800mm

空室延床面積

647.95坪

最寄駅

情報更新日

2026/01/15

晴海センタービルのテナント募集中区画

階数 面積 賃料(共益費含む) 保証金 入居可能日 検討リスト 詳細
3 168.50坪 応相談(応相談) 応相談
5 112.87坪 応相談(応相談) 応相談
5 84.25坪 応相談(応相談) 応相談
9 282.33坪 応相談(応相談) 応相談
…新着物件

アクセス

晴海センタービルの物件情報

晴海センタービル(中央区晴海)は勝どき駅(A2a番出口)から徒歩9分の賃貸オフィスです。
2006年竣工地上10階建てのビルです。ビルの周囲には街路樹や植栽が多く、オフィスエリアに温かみをもたらしています。600坪を超える貸室もあり、大規模な事務所をお探しの方に良いでしょう。EV8基・機械式駐車場68台・個別空調・男女別トイレがあります。セキュリティとして機械警備が導入されています。ビルは細長い長方形で窓面が多く、明るい室内となるでしょう。天井高2800㎜の開放感ある空間が広がります。
晴海センタービルは勝どき駅(A2a番出口)の他に月島駅(10番出口)徒歩14分、新豊洲駅(出口2)徒歩15分で利用も可能です。

近隣のエリア・駅から探す