晴海センタービルのテナント募集中区画
| 階数 | 面積 | 賃料(共益費含む) | 保証金 | 入居可能日 | 検討リスト | 詳細 |
|---|---|---|---|---|---|---|
| 3 | 168.50坪 | 応相談(応相談) | 応相談 | 即 | ||
| 5 | 112.87坪 | 応相談(応相談) | 応相談 | 即 | ||
| 5 | 84.25坪 | 応相談(応相談) | 応相談 | 即 | ||
| 9 | 282.33坪 | 応相談(応相談) | 応相談 | 即 |
…新着物件
アクセス
晴海センタービルの物件情報
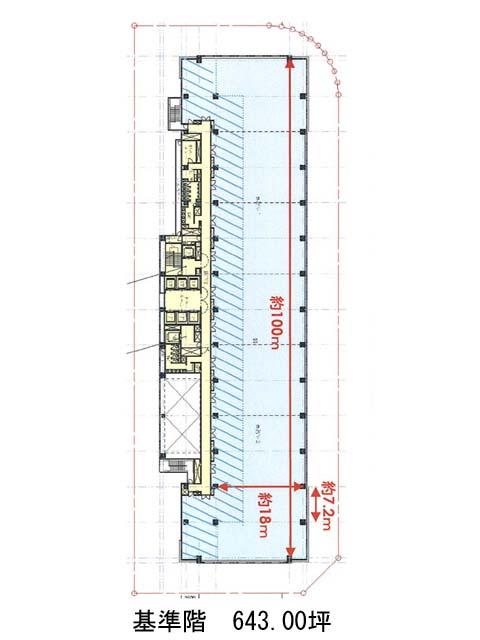
晴海センタービル(中央区晴海)は勝どき駅(A2a番出口)から徒歩9分の賃貸オフィスです。2006年竣工地上10階建てのビルです。ビルの周囲には街路樹や植栽が多く、オフィスエリアに温かみをもたらしています。600坪を超える貸室もあり、大規模な事務所をお探しの方に良いでしょう。EV8基・機械式駐車場68台・個別空調・男女別トイレがあります。セキュリティとして機械警備が導入されています。ビルは細長い長方形で窓面が多く、明るい室内となるでしょう。天井高2800㎜の開放感ある空間が広がります。晴海センタービルは勝どき駅(A2a番出口)の他に月島駅(10番出口)徒歩14分、新豊洲駅(出口2)徒歩15分で利用も可能です。

