築地616ビルのテナント募集中区画
| 階数 | 面積 | 賃料(共益費含む) | 保証金 | 入居可能日 | 検討リスト | 詳細 |
|---|---|---|---|---|---|---|
| 3 | 114.60坪 | 応相談(応相談) | 応相談 | 2026年4月上旬 |
…新着物件
アクセス
築地616ビルの物件情報
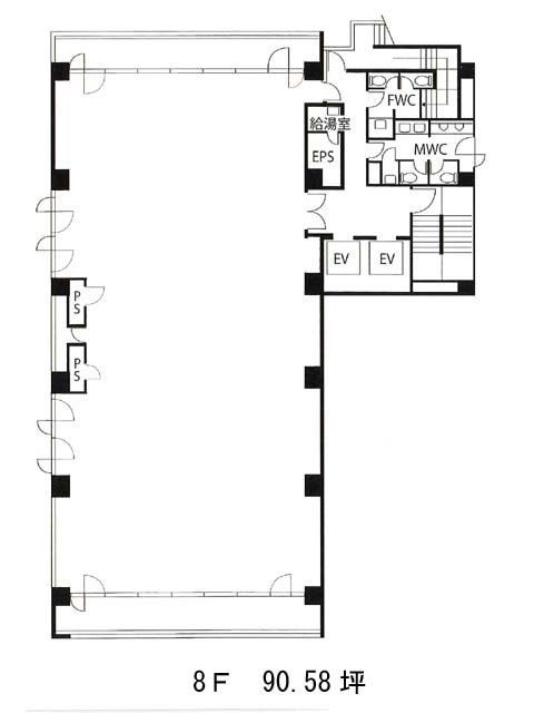
築地616ビル(中央区築地)は築地駅(1番出口)から徒歩8分の賃貸オフィスです。グレーの石張りですっきりとした外観のビルです。共用部は白をメインカラーとした明るい内装です。EV2基・駐車場20台・男女別トイレ・個別空調といった設備があります。室内はOAフロアで、長方形のすっきりした無柱空間となります。隅田川を渡る勝鬨橋の広々とした眺望がお楽しみ頂けるでしょう。築地場外市場は勿論、近隣にも魚介料理屋やラーメン屋等様々なジャンルの飲食店が建ち並びます。1階にコンビニが入り、日々の買い物等便利にご利用頂けるでしょう。築地616ビルは築地駅(1番出口)の他に勝どき駅(A1番出口)徒歩8分、築地市場駅(A1番出口)徒歩11分で利用も可能です。

