6階は現在募集がありません
1フロア募集区画あり

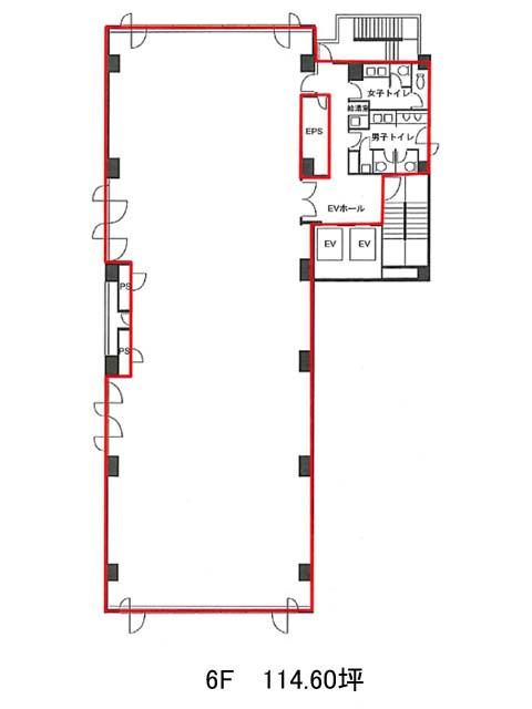
築地616ビル 6階

前の写真 次の写真

物件概要

物件番号

640-00108-50

物件名

築地616ビル

所在地

面積

114.60坪

賃料(共益費含)


入居日

募集終了

保証金

礼金

更新料

償却費

竣工

1994年3月

構造

SRC

規模

地上9階/地下1階

トイレ

男女別

空調

個別空調

エレベーター

セキュリティ

駐車場

耐震

新耐震基準

基準階天井高

2550mm

空室延床面積

114.60坪

最寄駅

情報更新日

2026/04/06

築地616ビルのテナント募集中区画

階数 面積 賃料(共益費含む) 保証金 入居可能日 検討リスト 詳細
3 114.60坪 応相談(応相談) 応相談 相談
…新着物件

築地616ビルのアクセス

築地616ビルの物件情報

築地616ビル(中央区築地)は築地駅(1番出口)から徒歩8分の賃貸オフィスです。
グレーの石張りですっきりとした外観のビルです。共用部は白をメインカラーとした明るい内装です。EV2基・駐車場20台・男女別トイレ・個別空調といった設備があります。室内はOAフロアで、長方形のすっきりした無柱空間となります。隅田川を渡る勝鬨橋の広々とした眺望がお楽しみ頂けるでしょう。築地場外市場は勿論、近隣にも魚介料理屋やラーメン屋等様々なジャンルの飲食店が建ち並びます。1階にコンビニが入り、日々の買い物等便利にご利用頂けるでしょう。
築地616ビルは築地駅(1番出口)の他に勝どき駅(A1番出口)徒歩8分、築地市場駅(A1番出口)徒歩11分で利用も可能です。

近隣のエリア・駅から探す