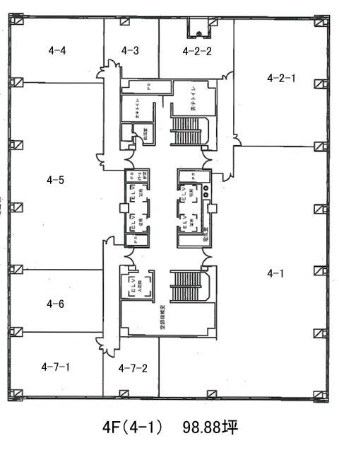
4階 4-1は現在募集がありません
コンワビル 4階 4-1
物件概要
コンワビルのテナント募集中区画
現在、空室がございません。
コンワビルのアクセス
コンワビルの物件情報
コンワビル(中央区築地)は東銀座駅(5番出口)から徒歩3分の賃貸オフィスです。1971年竣工、鉄骨鉄筋コンクリート 造の地上13階建ての建物です。2007年にリニューアルも行っています。エントランスは広々としており、とても明るく、来訪者にも好印象でしょう。設備面は、男女別トイレ、OAフロア、セントラル空調、エレベーターは複数基設置されており利用もスムーズです。貸室内はロの字をした形になっていますが、室内に柱はないためレイアウトも組みやすいでしょう。コンワビルは東銀座駅(5番出口)の他に築地駅(2番出口)徒歩5分、新富町駅(1番出口)徒歩6分で利用も可能です。

