2階は現在募集がありません
フェニックスビル 2階
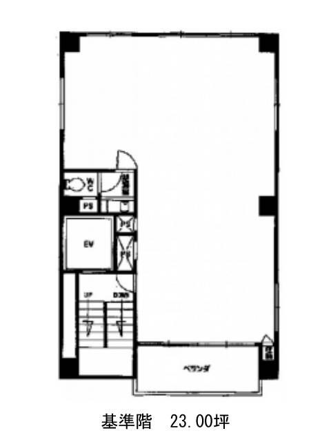
物件概要
フェニックスビルのテナント募集中区画
現在、空室がございません。
アクセス
フェニックスビルの物件情報
フェニックスビル(中央区築地)は築地駅(4番出口)から徒歩2分の賃貸オフィスです。フェニックスビルは築地駅(4番出口)の他に新富町駅(出口)徒歩3分、東銀座駅(5番出口)徒歩7分で利用も可能です。

