2階 2南は現在募集がありません
1フロア募集区画あり

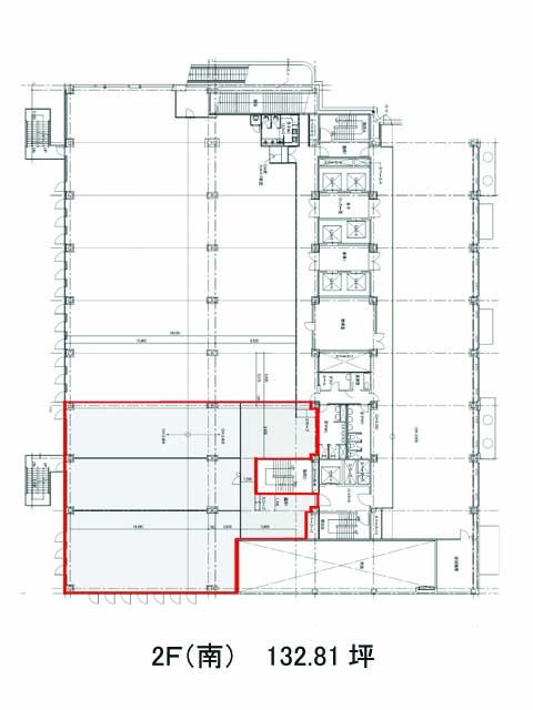
東劇ビル 2階 2南

前の写真 次の写真

物件概要

物件番号

640-00029-233

物件名

東劇ビル

所在地

面積

132.81坪

賃料(共益費含)


入居日

募集終了

保証金

礼金

更新料

償却費

竣工

1975年7月

構造

SRC

規模

地上19階/地下3階

トイレ

男女別

空調

個別空調

エレベーター

セキュリティ

駐車場

耐震

耐震補強済み

基準階天井高

2,500mm

空室延床面積

29.83坪

最寄駅

情報更新日

2026/03/13

東劇ビルのテナント募集中区画

階数 面積 賃料(共益費含む) 保証金 入居可能日 検討リスト 詳細
8 29.83坪 応相談(応相談) 応相談
…新着物件

東劇ビルのアクセス

東劇ビルの物件情報

東劇ビル(中央区築地)は東銀座駅(5番出口)から徒歩2分の賃貸オフィスです。
地上19階、地下3階建て、1975年竣工のビルです。白い外壁にずらりと窓が並び、シンプルな外観デザインをしています。北側・南側と2箇所からなり、北南を合わせた基準階面積は約272坪です。設備仕様として、EV・セントラル空調・男女別トイレ・OAフロア・非常階段2箇所があります。近隣は買い物客や観光客で賑わうエリアです。
東劇ビルは東銀座駅(5番出口)の他に築地駅(2番出口)徒歩5分、銀座駅(A5番出口)徒歩7分で利用も可能です。

近隣のエリア・駅から探す