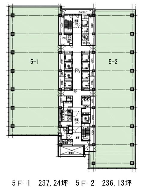
5階 5-2は現在募集がありません
銀座松竹スクエア 5階 5-2
物件概要
銀座松竹スクエアのテナント募集中区画
現在、空室がございません。
銀座松竹スクエアのアクセス
銀座松竹スクエアの物件情報
銀座松竹スクエア(中央区築地)は東銀座駅(5番出口)から徒歩2分の賃貸オフィスです。晴海通り沿いに建つ地上23階地下2階ビルです。外観はミラーガラスのスタイリッシュな印象です。敷地に大して余裕をもって建てられており、豊富な植栽が目を癒してくれるでしょう。吹抜けのエントランス内に大きな階段があり、待ち合わせ等にご利用頂けます。室内は配線のしやすいOAフロアとなり、空調は個別・機械警備・EV4基といった設備仕様です。天井高2800㎜の無柱空間で明るい開放感の中業務に取り組めるでしょう。銀座松竹スクエアは東銀座駅(5番出口)の他に築地駅(2番出口)徒歩5分、新富町駅(1番出口)徒歩7分で利用も可能です。

