銀座松竹スクエア 3階
物件概要
物件番号
640-00290-20物件名
銀座松竹スクエア所在地
- 東京都中央区築地1-13-1
- アクセスマップ
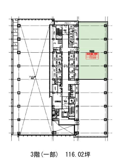
面積
116.02坪賃料(共益費含)
:応相談応相談
入居日
2026年1月上旬保証金
応相談礼金
なし更新料
なし償却費
なし竣工
2002年10月構造
SRC規模
地上23階/地下2階トイレ
男女別空調
エレベーター
有セキュリティ
駐車場
無耐震
新耐震基準基準階天井高
2800mm空室延床面積
116.02坪情報更新日
2025/11/05銀座松竹スクエアのテナント募集中区画
| 階数 | 面積 | 賃料(共益費含む) | 保証金 | 入居可能日 | 検討リスト | 詳細 |
|---|---|---|---|---|---|---|
| 3 | 116.02坪 | 応相談(応相談) | 応相談 | 2026年1月上旬 |
…新着物件
アクセス
銀座松竹スクエアの物件情報
銀座松竹スクエア(中央区築地)は東銀座駅(5番出口)から徒歩2分の賃貸オフィスです。晴海通り沿いに建つ地上23階地下2階ビルです。外観はミラーガラスのスタイリッシュな印象です。敷地に大して余裕をもって建てられており、豊富な植栽が目を癒してくれるでしょう。吹抜けのエントランス内に大きな階段があり、待ち合わせ等にご利用頂けます。室内は配線のしやすいOAフロアとなり、空調は個別・機械警備・EV4基といった設備仕様です。天井高2800㎜の無柱空間で明るい開放感の中業務に取り組めるでしょう。銀座松竹スクエアは東銀座駅(5番出口)の他に築地駅(2番出口)徒歩5分、新富町駅(1番出口)徒歩7分で利用も可能です。

