イセツネビルのテナント募集中区画
| 階数 | 面積 | 賃料(共益費含む) | 保証金 | 入居可能日 | 検討リスト | 詳細 |
|---|---|---|---|---|---|---|
| 4 | 49.12坪 | 864,512円/月(17,600円/坪) | 314万円 | 相談 |
…新着物件
アクセス
イセツネビルの物件情報
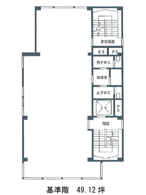
イセツネビル(中央区築地)は築地駅(4番出口)から徒歩3分の賃貸オフィスです。新大橋通りを一本西へ入った角地に建つ、9階建てのビルです。正面にガラスウォールを使用した、洗練された雰囲気のビルです。基準階は49.12坪の長方形の間取りです。無柱空間で、レイアウトしやすい間取りとなっています。室内に男女別トイレと給湯室が設置されています。近隣に、三井住友銀行、みずほ銀行、三菱東京UFJ銀行の支店があります。飲食店も多数ある便利な環境です。イセツネビルは築地駅(4番出口)の他に新富町駅(出口)徒歩3分、東銀座駅(5番出口)徒歩6分で利用も可能です。

