銀座大野ビル 3階
物件概要
物件番号
640-00073-40物件名
銀座大野ビル所在地
- 東京都中央区築地4-1-17
- アクセスマップ
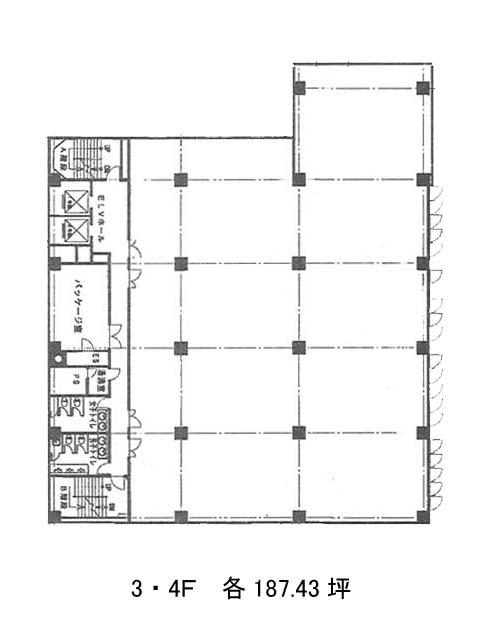
面積
187.43坪賃料(共益費含)
月額5,154,325円(27,500円/坪)
入居日
相談保証金
47,232,360円礼金
なし更新料
なし償却費
なし竣工
1973年10月構造
SRC規模
地上9階/地下1階トイレ
男女別空調
個別空調エレベーター
有セキュリティ
駐車場
有耐震
耐震補強済み基準階天井高
2450mm空室延床面積
376.87坪情報更新日
2025/09/08銀座大野ビルのテナント募集中区画
| 階数 | 面積 | 賃料(共益費含む) | 保証金 | 入居可能日 | 検討リスト | 詳細 |
|---|---|---|---|---|---|---|
| 3 | 187.43坪 | 5,154,325円/月(27,500円/坪) | 4,723万円 | 相談 | ||
| 8 | 189.44坪 | 5,209,600円/月(27,500円/坪) | 4,773万円 | 即 |
…新着物件
アクセス
銀座大野ビルの物件情報
銀座大野ビル(中央区築地)は東銀座駅(5番出口)から徒歩3分の賃貸オフィスです。窓面が多くあるため採光良好です。また周辺には、郵便局、コンビニや飲食店が複数あるので、とても利便性が高いです。基準階は約188坪の大型オフィスで、室内は長方形に近い形をしていますので、様々なレイアウトに柔軟に対応できそうです。ビル内には、OAフロアが備えられており、トイレは男女別で、駐車場も併設されている為、社用車を使う場合も便利です。銀座大野ビルは東銀座駅(5番出口)の他に築地駅(2番出口)徒歩6分、築地市場駅(A1番出口)徒歩7分で利用も可能です。

