7階は現在募集がありません
銀座大野ビル 7階
物件概要
銀座大野ビルのテナント募集中区画
現在、空室がございません。
アクセス
銀座大野ビルの物件情報
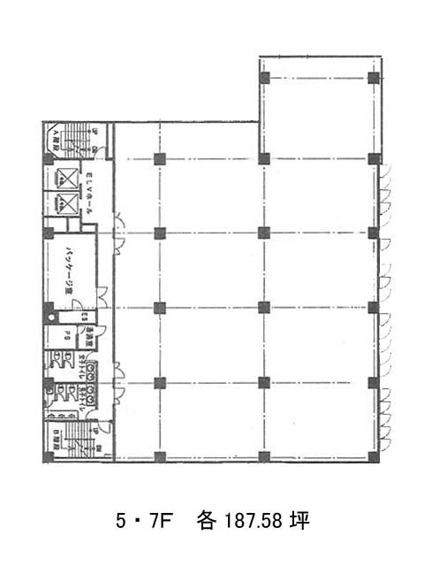
銀座大野ビル(中央区築地)は東銀座駅(5番出口)から徒歩3分の賃貸オフィスです。窓面が多くあるため採光良好です。また周辺には、郵便局、コンビニや飲食店が複数あるので、とても利便性が高いです。基準階は約188坪の大型オフィスで、室内は長方形に近い形をしていますので、様々なレイアウトに柔軟に対応できそうです。ビル内には、OAフロアが備えられており、トイレは男女別で、駐車場も併設されている為、社用車を使う場合も便利です。銀座大野ビルは東銀座駅(5番出口)の他に築地駅(2番出口)徒歩6分、築地市場駅(A1番出口)徒歩7分で利用も可能です。

