13階は現在募集がありません
4フロア募集区画あり

合人社江戸日本橋ビル 13階

前の写真 次の写真

物件概要

物件番号

643-00310-10

物件名

合人社江戸日本橋ビル

所在地

面積

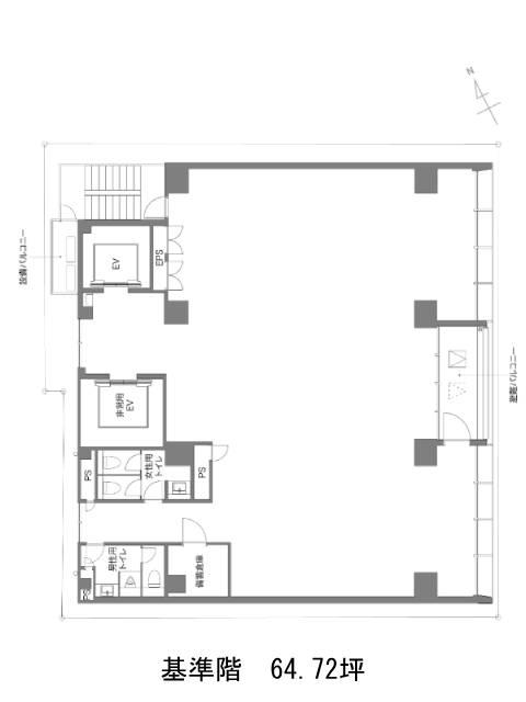
64.72坪

賃料(共益費含)


入居日

募集終了

保証金

礼金

更新料

償却費

竣工

2025年2月

構造

S造

規模

地上13階

トイレ

男女別

空調

個別空調

エレベーター

セキュリティ

駐車場

耐震

新耐震基準

基準階天井高

3265mm

空室延床面積

258.88坪

最寄駅

情報更新日

2025/11/19

合人社江戸日本橋ビルのテナント募集中区画

階数 面積 賃料(共益費含む) 保証金 入居可能日 検討リスト 詳細
4 64.72坪 応相談(応相談) 応相談
5 64.72坪 応相談(応相談) 応相談
7 64.72坪 応相談(応相談) 応相談
11 64.72坪 応相談(応相談) 応相談
…新着物件

アクセス

合人社江戸日本橋ビルの物件情報

合人社江戸日本橋ビル(中央区日本橋)は日本橋駅(C6番出口)から徒歩2分の賃貸オフィスです。
2024年11月竣工、地上13階建てS造のビルです。ワンフロアワンテナントとなり、各室面積は60.0坪。中規模の事務所をお探しの方に良いでしょう。設備仕様として、EV1基・個別空調・備蓄倉庫・非常用バルコニー・男女別トイレがそろいます。昭和通り沿いに建ち、周辺はオフィスビルが多く建つエリアです。近隣に百貨店・コンビニ・レストラン等の店舗が充実しており、ランチにご利用頂けるでしょう。
合人社江戸日本橋ビルは日本橋駅(C6番出口)の他に茅場町駅(11番出口)徒歩5分、三越前駅(B6番出口)徒歩7分で利用も可能です。

近隣のエリア・駅から探す