合人社江戸日本橋ビル 11階
物件概要
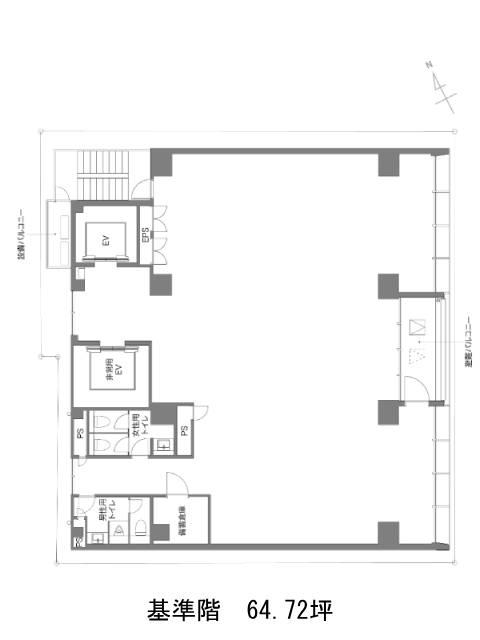
合人社江戸日本橋ビルのテナント募集中区画
| 階数 | 面積 | 賃料(共益費含む) | 保証金 | 入居可能日 | 検討リスト | 詳細 |
|---|---|---|---|---|---|---|
| 4 | 64.72坪 | 応相談(応相談) | 応相談 | 即 | ||
| 5 | 64.72坪 | 応相談(応相談) | 応相談 | 即 | ||
| 7 | 64.72坪 | 応相談(応相談) | 応相談 | 即 | ||
| 11 | 64.72坪 | 応相談(応相談) | 応相談 | 即 |
…新着物件
アクセス
合人社江戸日本橋ビルの物件情報
合人社江戸日本橋ビル(中央区日本橋)は日本橋駅(C6番出口)から徒歩2分の賃貸オフィスです。2024年11月竣工、地上13階建てS造のビルです。ワンフロアワンテナントとなり、各室面積は60.0坪。中規模の事務所をお探しの方に良いでしょう。設備仕様として、EV1基・個別空調・備蓄倉庫・非常用バルコニー・男女別トイレがそろいます。昭和通り沿いに建ち、周辺はオフィスビルが多く建つエリアです。近隣に百貨店・コンビニ・レストラン等の店舗が充実しており、ランチにご利用頂けるでしょう。合人社江戸日本橋ビルは日本橋駅(C6番出口)の他に茅場町駅(11番出口)徒歩5分、三越前駅(B6番出口)徒歩7分で利用も可能です。

