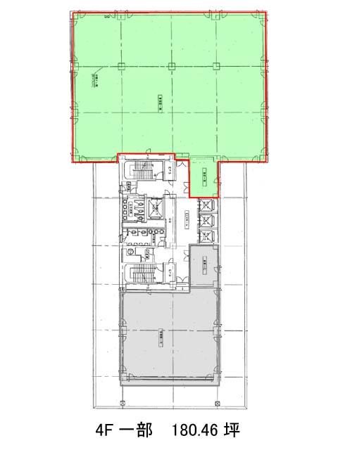
兜町第1平和ビルのテナント募集中区画
| 階数 | 面積 | 賃料(共益費含む) | 保証金 | 入居可能日 | 検討リスト | 詳細 |
|---|---|---|---|---|---|---|
| 6 | 22.45坪 | 968,000円/月(43,118円/坪) | 88万円 | 即 |
…新着物件
アクセス
兜町第1平和ビルの物件情報
兜町第1平和ビル(中央区日本橋兜町)は茅場町駅(11番出口)から徒歩2分の賃貸オフィスです。茶系を基調とした石造りでシンプルなデザインですが、重厚感があり存在感を感じられます。設備面は、OAフロア、個別空調、男女別トイレ、エレベーターは3基設置されています。駐車場も併設されている為、社用車をお使いの企業様にも便利です。周辺には、郵便局や様々な飲食店があるため便利です。また、当ビル内にもコンビニが入っているため、休憩時間などに利用しやすいでしょう。兜町第1平和ビルは茅場町駅(11番出口)の他に日本橋駅(D2番出口)徒歩4分、三越前駅(B6番出口)徒歩7分で利用も可能です。

