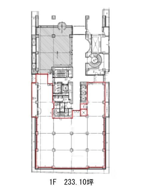
1階は現在募集がありません
兜町第1平和ビル 1階
物件概要
兜町第1平和ビルのテナント募集中区画
現在、空室がございません。
兜町第1平和ビルのアクセス
兜町第1平和ビルの物件情報
兜町第1平和ビル(中央区日本橋兜町)は茅場町駅(11番出口)から徒歩2分の賃貸オフィスです。茶系を基調とした石造りでシンプルなデザインですが、重厚感があり存在感を感じられます。設備面は、OAフロア、個別空調、男女別トイレ、エレベーターは3基設置されています。駐車場も併設されている為、社用車をお使いの企業様にも便利です。周辺には、郵便局や様々な飲食店があるため便利です。また、当ビル内にもコンビニが入っているため、休憩時間などに利用しやすいでしょう。兜町第1平和ビルは茅場町駅(11番出口)の他に日本橋駅(D2番出口)徒歩4分、三越前駅(B6番出口)徒歩7分で利用も可能です。

