6階は現在募集がありません
1フロア募集区画あり

兜町第1平和ビル 6階

前の写真 次の写真

物件概要

物件番号

645-00059-205

物件名

兜町第1平和ビル

所在地

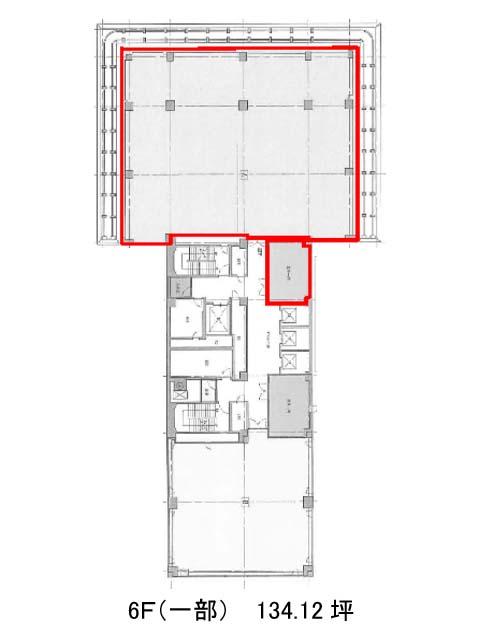
面積

134.12坪

賃料(共益費含)


入居日

募集終了

保証金

礼金

更新料

償却費

竣工

1983年2月

構造

SRC

規模

地上8階/地下3階

トイレ

男女別

空調

個別空調

エレベーター

セキュリティ

駐車場

耐震

新耐震基準

基準階天井高

2400mm

空室延床面積

22.45坪

最寄駅

情報更新日

2026/01/21

兜町第1平和ビルのテナント募集中区画

階数 面積 賃料(共益費含む) 保証金 入居可能日 検討リスト 詳細
6 22.45坪 968,000円/月(43,118円/坪) 88万円
…新着物件

アクセス

兜町第1平和ビルの物件情報

兜町第1平和ビル(中央区日本橋兜町)は茅場町駅(11番出口)から徒歩2分の賃貸オフィスです。
茶系を基調とした石造りでシンプルなデザインですが、重厚感があり存在感を感じられます。設備面は、OAフロア、個別空調、男女別トイレ、エレベーターは3基設置されています。駐車場も併設されている為、社用車をお使いの企業様にも便利です。周辺には、郵便局や様々な飲食店があるため便利です。また、当ビル内にもコンビニが入っているため、休憩時間などに利用しやすいでしょう。
兜町第1平和ビルは茅場町駅(11番出口)の他に日本橋駅(D2番出口)徒歩4分、三越前駅(B6番出口)徒歩7分で利用も可能です。

近隣のエリア・駅から探す