兜町第6葉山ビル 5階新着
物件概要
物件番号
645-00008-41物件名
兜町第6葉山ビル所在地
- 東京都中央区日本橋兜町17-2
- アクセスマップ
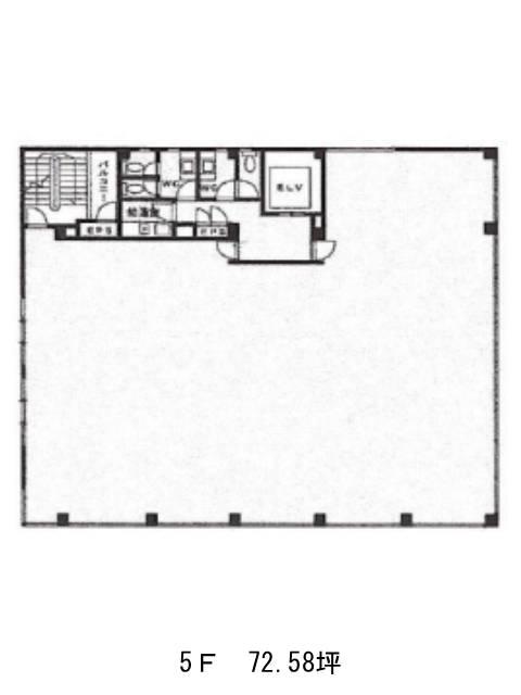
面積
72.58坪賃料(共益費含)
月額1,437,084円(19,800円/坪)
入居日
即保証金
7,838,640円礼金
なし更新料
新1ケ月償却費
10%竣工
1989年5月構造
RC規模
地上6階/地下1階トイレ
不明空調
個別空調エレベーター
有セキュリティ
有駐車場
有耐震
新耐震基準基準階天井高
空室延床面積
145.16坪情報更新日
2026/04/24兜町第6葉山ビルのテナント募集中区画
| 階数 | 面積 | 賃料(共益費含む) | 保証金 | 入居可能日 | 検討リスト | 詳細 |
|---|---|---|---|---|---|---|
| 3 | 72.58坪 | 1,437,084円/月(19,800円/坪) | 914万円 | 2026年5月上旬 | ||
| 5 | 72.58坪 | 1,437,084円/月(19,800円/坪) | 783万円 | 即 |
…新着物件
兜町第6葉山ビルのアクセス
兜町第6葉山ビルの物件情報
兜町第6葉山ビル(中央区日本橋兜町)は茅場町駅(12番出口)から徒歩4分の賃貸オフィスです。兜町第6葉山ビルは茅場町駅(12番出口)の他に日本橋駅(D1番出口)徒歩5分、八丁堀駅(A5番出口)徒歩6分で利用も可能です。