紅萌ビル 2階
物件概要
物件番号
646-00012-20物件名
紅萌ビル所在地
- 東京都中央区日本橋茅場町1-11-8
- アクセスマップ
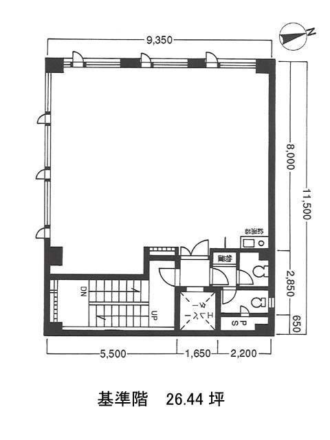
面積
26.44坪賃料(共益費含)
月額449,480円(17,000円/坪)
入居日
即保証金
2,055,181円礼金
1ケ月更新料
新1ケ月償却費
2ケ月竣工
1971年12月構造
SRC規模
地上8階/地下1階トイレ
男女別空調
個別空調エレベーター
有セキュリティ
有駐車場
無耐震
旧耐震基準基準階天井高
空室延床面積
26.44坪情報更新日
2025/12/08紅萌ビルのテナント募集中区画
| 階数 | 面積 | 賃料(共益費含む) | 保証金 | 入居可能日 | 検討リスト | 詳細 |
|---|---|---|---|---|---|---|
| 2 | 26.44坪 | 449,480円/月(17,000円/坪) | 205万円 | 即 |
…新着物件
アクセス
紅萌ビルの物件情報
紅萌ビル(中央区日本橋茅場町)は茅場町駅(3番出口)から徒歩1分の賃貸オフィスです。紅萌ビルは茅場町駅(3番出口)の他に八丁堀駅(A4番出口)徒歩6分、日本橋駅(D1番出口)徒歩7分で利用も可能です。

