7階は現在募集がありません
紅萌ビル 7階
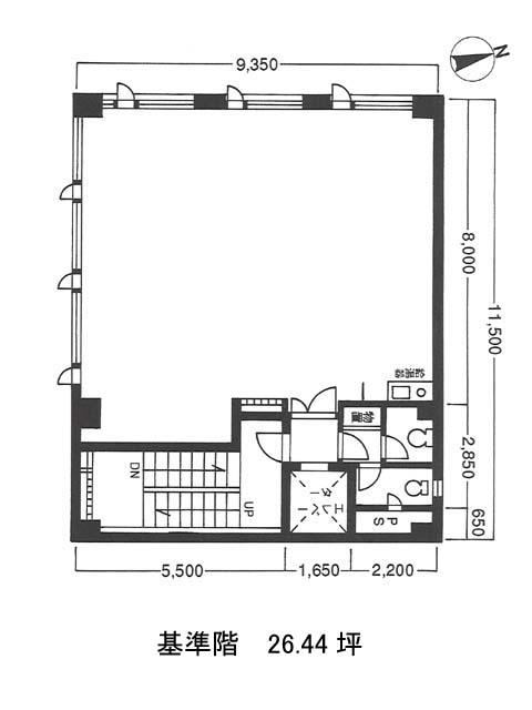
物件概要
紅萌ビルのテナント募集中区画
現在、空室がございません。
紅萌ビルのアクセス
紅萌ビルの物件情報
紅萌ビル(中央区日本橋茅場町)は茅場町駅(3番出口)から徒歩1分の賃貸オフィスです。紅萌ビルは茅場町駅(3番出口)の他に八丁堀駅(A4番出口)徒歩6分、日本橋駅(D1番出口)徒歩7分で利用も可能です。

